Frigotherm Engineering (Pty) Ltd | Unit 9, 1055 Anvil Road, Robertville | Johannesburg | 1709 | Tel: +27 11 672 4203
FRIGOTHERM

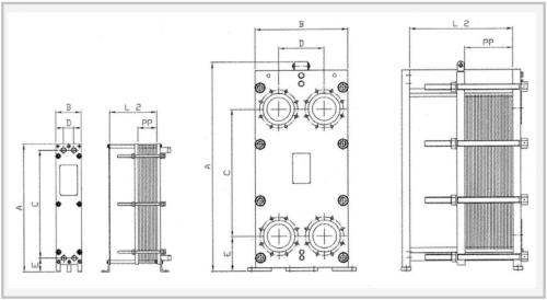
Bolted Plate Heat Exchangers

Series FP, FPDW and FPG                  the brochure.
The design and function of FRIGOTHERM's plate heat exchangers The heart of a plate heat exchanger is a pack of embossed plates with apertures.  The plates are assembled in a 180 ° angle to each other, resulting in flow gaps on each side.  Each plate is provided with a gasket, which securely seals the flow gaps from the atmosphere and separates the two media used in the heat exchange.  The gasketed plate pack is mounted in a rack and is compressed with tightening bolts between the fixed plate and movable plate.  Below is an X-ray view of a typical heat exchanger. To guarantee maximum heat transfer, warm and cold media are normally let through the plate heat exchanger in one- pass or multi-pass counterflow.  Connections are on the fixed plate, but can also be on the movable plate for multi-pass flow.  The range consists of the following 3 series of plate heat exchangers: FP : gasketed / bolted plate heat exchangers (standard design) FPDW : safety plate heat exchangers (double-wall plate design) FPG : semi- welded plate heat exchangers (welded cassettes) Technical key data - Capacity : 1 kW to 30 MW. Volume flow : 5 m³/h  to 4,500 m³/h. Surface / plate : 0,04 m² to 3,00 m². Nominal conncetion diametre : DN 25 to DN 500. Operating temperature : - 20 °C to + 195 °C. Working pressure : max. 25 bar. The benefits of FRIGOTHERM's FP and FPDW series plate heat exchangers - ​Low investment, operation and maintenance costs. Highly efficient heat transfer (K-values are on average 3 to 5 times higher compared to bare-tube heat exchangers) For economic solutions asymmetrical flow gaps are available. Exploitation of even the smallest temperature differences <  = 1 K. Up to 75 % less space required. Self-cleaning effect due to a highly turbulent flow behaviour. Future additional capacity upgrading is possible by fitting extra heat transfer plates. High safety measures avoid media mixing. Easy open / clean. Low operating weight / low hold-up volume. Always the right plate for your requirements “Off-set”embossing for highest efficiency - All plate heat exchangers look very similar at first glance.  But the difference and the secret of efficient heat transfer cannot be seen from the outside – it lies in the wave pattern.  Its performance depends on many factors, including the size and number of plates.  Altogether, these factors determine the size of the plate heat exchangers and the operating costs.  A crucial factor, for example, is that plates with different plate corrugation angles (in relation to the flow direction) can be combined.  Obtuse corrugation angles result in longer thermal paths (H) but also lead to  higher pressure drops.  Acute corrugation (L) angles are chosen if the pressure drop must be kept low. Plate heat exchangers offer more advantages by combining different plate corrugations – with the unique “off-set” profile even asymmetrical flow gaps can be formed.  Therefore, the cross- sectional areas of the warm and the cold side of the plate heat exchangers can approximately be one third larger or smaller, as per the illustrations above. With the sophisticated “off- set” profile our customers benefit from an additional tool for providing cost- effective plate heat exchanger solutions.  An oil cooler, for example, is significantly smaller and cheaper if the volume flow on the cooling water side can be much larger.  Therefore, up to 17 % less exchange surface is required compared to conventional symmetrical plates.  The configuration of the plate pack is always calculated using state-of-the-art design software, whether symmetrical or asymmetrical.  So, FRIGOTHERM always aims to find the most efficient and cost effective solution for the customer. Welded casettes - In this design, special media such as ammonia in cooling applications, flows through welded plate pairs.  On the water side between the cassettes, specially designed gaskets are used. Double-wall plates - These plates provide maximum protection against the mixing of media used in the heat exchange process.  Two simultaneously embossed plates are laser-welded at the port holes.  If there is a leak, fluids can escape at the edges of the plate pairs. A short overview of plate and gasket - Very high heat transfer rates due to thermodynamically optimised design. Corrugation fields with “off-set” embossing allow for symmetrical and asymmetrical flow gaps (1). Specially embossed entry fields for an optimum distribution of media (2). Gaskets fastened by “clip-system” for easy maintenance. Gaskets have a special ribbed surface, enabling more exact centring and stabilisation of the entire plate pack (3). Double gasket with leakage groove between two media, preventing mixing of the media (4). Special plate profile at the edges, reinforcing the plate pack and ensuring high pressure resistance of the gasket during operation (5). Technical data Plate material - As standard, FRIGOTHERM heat transfer plates are produced in 1.4404 / AISI 316L.   Due to the high content in molybdenum, this material is generally more corrosion-resistant and more resistant to chloride damage than 1.4301 / AISI 304. Optionally, the following additional materials may be used: 1.4301 / AISI 304 (cost-effective for use with uncritical media). 1.4539 / AISI 904L (with high nickel content to avoid stress corrosion cracking; good price / performance ratio when media with a low acid and chloride content are applied). 1.4547 / 254 SMO (higher chloride and acid-resistance than 1.4404 / AISI 316L). Alloy C276 (highly resistant against acids and chlorides, such as for concentrated sulphuric acid). Titanium ASTM B 265 Grade 1. Titanium-palladium ASTM B265 Grade 11 (highest material quality; appropriate, for example, for chlorides at higher temperatures). Accessories - Optionally, we equip your plate heat exchanger with the following accessories: Insulations (for example mineral insulation material cladded with galvanised sheet;  other claddings optional). Inline-filters. Special painting (such as sea air resistant paint). Shroud / drip tray. Earthing lugs. CIP cleaning system. Special equipment - Frames made of stainless steel or with stainless steel cladding. Plate heat exchangers as double cooler with switch-over valve and thermostat. Connections - The plate heat exchangers can be supplied with all common connections (threaded or flange connection, connection with loose flange, moulded rubber part or metal lining; others on request) for any application (industry, building services, chemicals, food).  Of course, all common materials as well as welded designs are available. Gasketing - Depending on the design and the type, adhesive or non-adhesive (clip-system) gaskets may be used.  As gasket materials, well-known, proven and tested materials are used, such as: NBR (nitrile-rubber):  universally applicable for aqueous and oily fluids such as water / oil applications. EPDM (ethylene-propylene-rubber):  wide range of applications for many chemical compounds which do not contain mineral oil and grease;  also for water and steam applications. Fluororubber (Viton):  extremely resistant to chemicals and organic solvents, also to sulphuric acid and vegetable oils at high temperatures. Other materials on request. Dimensions FP gasketed / bolted PHE (standard design) - FPDW safety PHE (double-wall plate design) - More types and sizes on request - Techinical changes reserved                  - pcs. = number of plates Required data for the best plate heat exchanger design State-of-the-art computer selection software is used, enabling the team to supply customers with the optimal model size.  The data required to make the optimal model size selection can be found in the GET A QUOTE section - simply click on PLATE HEAT EXCHANGERS, complete the form electronically and submit it to the FRIGOTHERM team.  If you still require further assistance, please do not hesitate to contact us - we will be pleased to assist you. Summary Overview
MATERIALS   Standard Designs   Shells - Steel 304SS, 316SS, 304LSS,     316LSS up to 42-inch diametre   Bonnets / Channels - Steel, 304SS, 3136SS, 304LSS, 316LSS, Cast Iron, Cast Bronze,   Ductile Iron   Tubesheets - Aluminium Bronze, 90/10 CuNi, Muntz, RNB, 304SS, 316SS, 304LSS,    316LSS Steel   Tubes - Carbon Steel, Stainless Steel, Nickel and Nickel Alloys, Titanium and other Alloys, Bare and Lo-Fin Tubing   CAPABILITIES Tube expansion Seal and strength welding of  tubes to tubesheet Expansion joints (flanged and  flued head as well as bellows  type) Die pen and Helium leak testing Heat transfer test laboratory Radiographic, ultrasonic and magnetic particle testing (sub- contracted)
DESIGN CAPABILITIES   Custom Designs   Materials - Stainless steel(s) (including 300, 400  and 900 series), Titanium, 90/10 CuNi, 70/30 CuNi, Incoloy, Inconel, 254SMO (Note: Weld qualifications may have to be developed)   Diametre -  Up to 22 inches for standard designs Custom designs up to 42 inches   Length - Up to 30 feet for standard steel designs and 21 feet for standard stainless steel designs Custom designs up to 40 feet   Temperature - From -20 °F (-29 °C) up to 655 °F (343 °C) with standard designs Custom designs from -300 °F         (-184 °C) up to 1000°F (538 °C)   Weight - 10 tons maximum   SPECIFICATIONS ASME Section VIII Division 1 TEMA Classes “B”, “C” and “R” API The Pressure Equipment    Directive (97/23/EC) SANS 347
 MODELS OF EFFICIENCY   Customised Shell and Tubes,   OCC and Univex Series Brazed Plate Heat Exchangers Bolted Plate Heat Exchangers FOT Series Air Blast Oil Coolers Air Heaters, Steam Boilers
.
View View
Manufacturers of premier heat exchange equipment for Africa and beyond tel: +27 11 672 4203  /  e-mail: frigo@mweb.co.za